Преимущества
Автоматизация
Управление технологическими процессами по заданной программе
Любая производительность
Производство очистной системы под конкретные параметры
SMS-оповещение
Уведомления о нештатных ситуациях в реальном времени
Морозоустойчивость
Стабильная очистка при экстремально низких температурах до –60 °C
Масштабируемость
Поэтапное увеличение производительности при росте количества пользователей
Подогрев стоков
Ускорение процессов биологической очистки за счет оптимальной температуры
Описание
Станции «ТВЕРЬ-С» – блочно-модульные станции очистки хозяйственно-бытовых и близких к ним по составу стоков, применяются на Крайнем Севере в отдаленных населенных пунктах, вахтовых поселках, военных частях и полярных поселениях.
Установка предназначена для приема и очистки хозяйственно-бытовых и близких к ним по составу сточных вод.
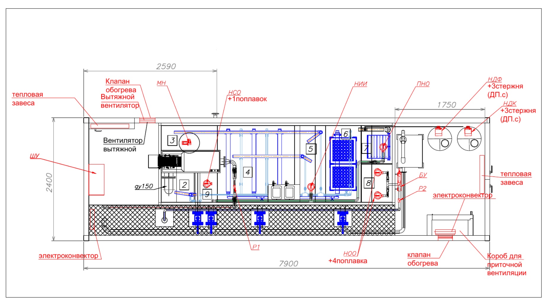
Установка «ТВЕРЬ-С» состоит из одного блок-контейнера, в котором размещена технологическая емкость, а так же входная часть, технологическое, электротехническое и отопительно-вентиляционное оборудование. Конструкция блок-контейнера разработана для условий Крайнего севера и представляет из себя несущий (сварной, из стального проката, с антикоррозийным покрытием) эпоксидный композит, на который крепятся ограждающие конструкции типа "сэндвич". Толщина утеплителя зависит от климатических условий эксплуатации.
Возможно изготовление в корпоративных цветах Заказчика, нанесение фирменного логотипа. Для обеспечения подачи стоков на установку очистки в блочно-модульном исполнении рекомендуем предусмотреть КНС (подбор КНС по дополнительному запросу).
Станция работает в круглосуточном, круглогодичном режиме, без постоянного присутствия обслуживающего персонала.
Изготовление и оснащение станции очистки «ТВЕРЬ-С» производится индивидуально под потребности заказчика!
Модельный ряд
Наименование модели
Габариты
Производ-ность
Количество корпусов
Масса без учета воды
Цена
Тверь-1,5С
2,4м х 5,3м х 2,4м
1.5 м3/сут.
1 шт.
Тверь-3С
2,4м х 6,0м х 2,4м
3 м3/сут.
1 шт.
Тверь-6С
2,4м х 9,6м х 2,4м
6 м3/сут.
1 шт.
Тверь-12С
2,4м х 12м х 2,4м
12 м3/сут.
2 шт.
Тверь-25С
2,4м х 12м х 2,4м
25 м3/сут.
2 шт.
Тверь-50С
6,0м х 6,0м х 5,6м
50 м3/сут.
2 шт.
Тверь-100С
3,0м х 12м х 3,0м
100 м3/сут.
4 шт.
Тверь-200С
3,0м х 12м х 3,0м
200 м3/сут.
4 шт.
Применение
Станции «ТВЕРЬ-С» используются в условиях Крайнего Севера: в отдалённых населённых пунктах, вахтовых и полярных поселках, а также в военных частях. Очистные сооружения спроектированы для бесперебойной работы при экстремально низких температурах и ограниченном доступе обслуживающему персоналу. Конструкция отличается надежностью, автономностью и позволяет обеспечивать стабильную очистку сточных вод даже в самых суровых климатических условиях.
Принцип работы
Очистка сточных вод осуществляется в несколько этапов:
- МЕХАНИЧЕСКАЯ ОЧИСТКА.
- БИОЛОГИЧЕСКАЯ ОЧИСТКА с процессами нитрификации-денитрификации, обеспечивающая удаление не только органических загрязнений, но и биогенных элементов (азота и фосфора).
- ГЛУБОКАЯ многоступенчатая БИОЛОГИЧЕСКАЯ ОЧИСТКА с использованием иммобилизующей загрузки.
- ФИЛЬТРАЦИЯ, СОРБЦИЯ И ОБЕЗЗАРАЖИВАНИЕ.
Состав стадий может изменяться в зависимости от состава и концентрации загрязняющих веществ в поступающих сточных водах.
Секции очистных сооружений:
-
01 СОРОУЛАВЛИВАНИЕ
Удаление из сточных вод крупного мусора, твердых бытовых отходов и плавающих включений. Данный этап защищает оборудование станции от повреждений и обеспечивает стабильную работу последующих процессов очистки.
-
02 ПЕСКОУЛАВЛИВАНИЕ
Удаление из сточных вод минеральных примесей, преимущественно песка. Данный этап снижает абразивное воздействие на оборудование и предотвращает заиливание последующих сооружений очистной системы.
-
03 УСРЕДНЕНИЕ
Обеспечение равномерной подачи сточных вод на очистные сооружения. Одновременно происходит выравнивание концентрации загрязняющих веществ, что повышает эффективность работы последующих стадий очистки.
-
04 ПЕРВИЧНОЕ ОТСТАИВАНИЕ
Выделение из сточных вод грубодисперсной нерастворимой взвеси в осадок и отделение эмульгированных веществ в виде пленки с последующим их удалением. Этот этап снижает нагрузку на биологические процессы и повышает общую эффективность очистки.
-
05 АНАЭРОБНЫЕ ПРОЦЕССЫ
Разложение трудноокисляемых органических соединений в бескислородной среде. На этом этапе сточные воды подготавливаются к последующему удалению фосфатов и более глубокой биологической очистке.
-
06 ДЕНИТРИФИКАЦИЯ
Удаление окисленных форм азота (нитритов и нитратов) за счет использования органических веществ. В процессе работы специальные микроорганизмы преобразуют соединения азота в безопасный молекулярный азот, снижая токсичность сточных вод.
-
07 АЭРОБНЫЕ ПРОЦЕССЫ
Окисление органических веществ до углекислого газа и воды. При оптимальных условиях на этом этапе также происходит биологическая дефосфотация, то есть удаление фосфатов из сточных вод.
-
08 НИТРИФИКАЦИЯ
Окисление аммонийного азота до нитритов и нитратов в присутствии кислорода. Этот этап обеспечивает глубокую биологическую очистку сточных вод и снижает их токсичность.
-
09 ВТОРИЧНОЕ ОТСТАИВАНИЕ
Отделение очищенной воды от биомассы активного ила, участвующего в процессе очистки. На этом этапе организуется возврат части иловой смеси для повторного окисления, что поддерживает стабильную работу биологической системы.
-
10 ХИМИЧЕСКОЕ ВОЗДЕЙСТВИЕ
Введение реагентов для осаждения остаточных растворенных примесей и фосфатов. На этом этапе формируется осадок, что обеспечивает дополнительную очистку сточных вод и доведение показателей до нормативных требований.
-
11 ФИЛЬТРОВАНИЕ
Доочистка сточных вод на зернистых фильтрующих загрузках от взвешенных частиц различного происхождения, включая улавливание хлопьев вынесенного ила. Этап обеспечивает достижение нормативов по содержанию взвешенных веществ (ниже 7–8 мг/л) и при необходимости позволяет удалять специфические загрязнения.
-
12 СОРБЦИЯ
Удаление специфических загрязняющих веществ, которые не поддаются биологической очистке. Применяется в случае их присутствия в сточных водах для достижения требуемых нормативов качества.
-
13 ДЕЗИНФЕКЦИЯ
Финальный этап очистки сточных вод перед их сбросом в водоем или повторным использованием. Облучение сточных вод ультрафиолетом определенного спектра, которое подавляет способность микроорганизмов к размножению и разрушение клеток патогенных микроорганизмов с помощью мощного окислителя, обеспечивающего надежную санитарную безопасность очищенной воды.